贵州省安顺市碧桂园

    瞿仕猛

    凹凸设计工作室设计师


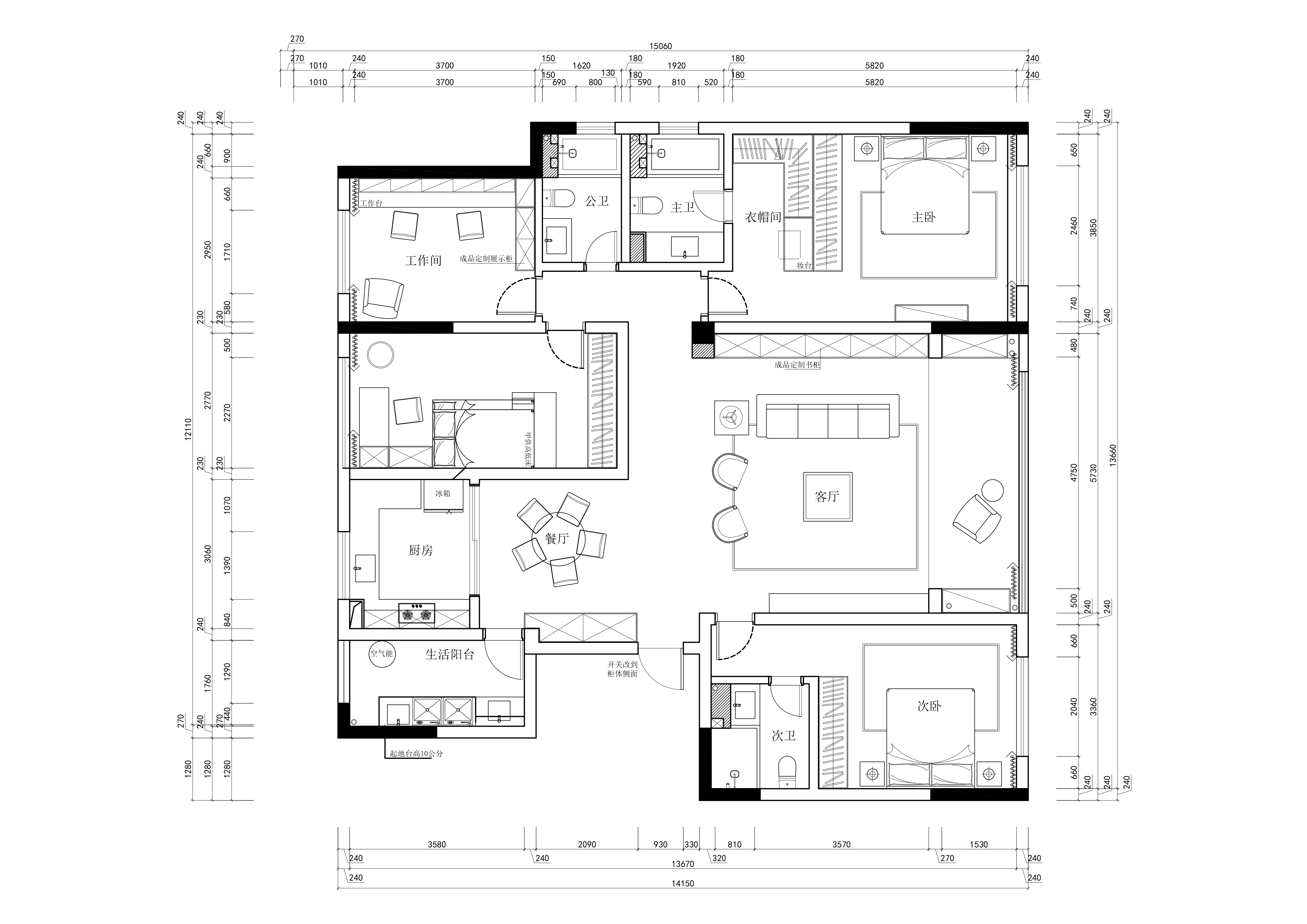
    本项目落地与贵州省安顺市。一个被大自然包裹的城市,适宜的温度,宜居的维度,处处体现大自然的深度。 本案例以:宁静的夏天为主题,突出一个静字。 客厅:人工光的普照,自然光的淋浴,大面积的落地玻璃,对映着室内室外的风景,把室内与室外紧紧的包裹再一起,没有彼此。清晨的第一杯咖啡,坐在沙发上,慢慢品尝心中那份丢失的宁静。 卧室:进门的温度,1800大床的舒适度,床头吊灯的延伸度。何不体现整个房间的格度(温馨,淡雅,舒适)。旅行劳累,一个大浴缸,能洗去身体的疲惫。躺在浴缸里,夜空的星光穿过天窗,穿过身心,净化身心最后一丝疲惫,让心灵得到升华。 这也是这套名宿方案的设计初衷:一尘不染、素净澄明。用平静的心灵看世界,利用淡淡的家具布局把原有的空间净化,把气质和品位含蓄地表现出来。最终回归自然。

    2021/10/29

    4716