湖州东鱼坊鲜之醇奶茶店

    张倬玮

    哈尔滨骏汇装饰工程有限公司室内设计师


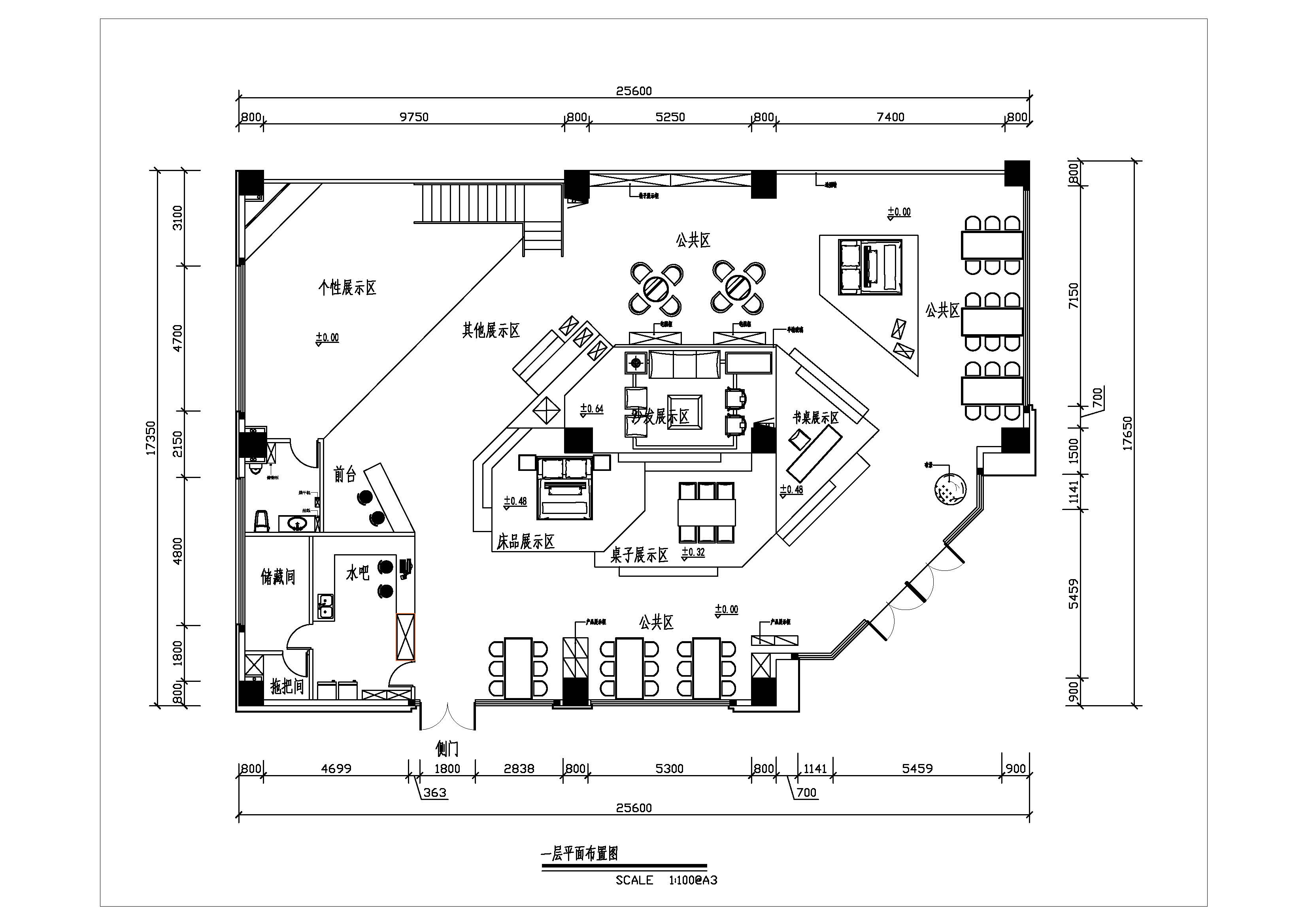
    奶茶店装修如果要醒目,一用亮系列颜色为住,比如灰色,白色,也可以用深系列颜色,黑色比较好,配上暖黄色的招牌灯,招牌灯设计不要用美术体,最好用灯带直接圈成有特色的字体,奶茶店装修主题设计上要么花花绿绿到底,要么采用一种颜色做住色调,要区别干当地已有奶茶店的大体颜色,毕竟一个醒目的有特色的颜色会让大家看一眼就知道是某某店的奶茶。奶茶店空间有限,所以许多建材与设备,均应作经济有序的组合,以显示出形式之美。所谓形式美,就是整体与部分的和谐。简单的平面配置富于统一的理念,但容易因单调而失败;复杂的平面配置富干变化的趣味,但却容易松散。奶茶店的装修最好以舒适、温馨、整洁、干净的特点为主,具体装修过程中注意整体的协调性、色彩的搭配等事宜。 奶茶店空间合理布置是比较重要的事项,我们必须合理的设计各项功能区的位置。如:西点展示区、散点裱花奶茶展示区、裱花操作间、现烤区、收银吧台、等候休闲区等等。另外,在空间的布苦上我们可遵循以下二个原则:1.展示区必须往外放,而休闲区则要往里放,计经过的顾客能对我们的产品一目了然,从而产生购买的欲望,这也是奶茶店提高营业额的重要法宝。

    2021/10/29

    4362

    你可能对这些感兴趣